Projects
Explore our projects. Reach out if you would like to discuss work with our team.
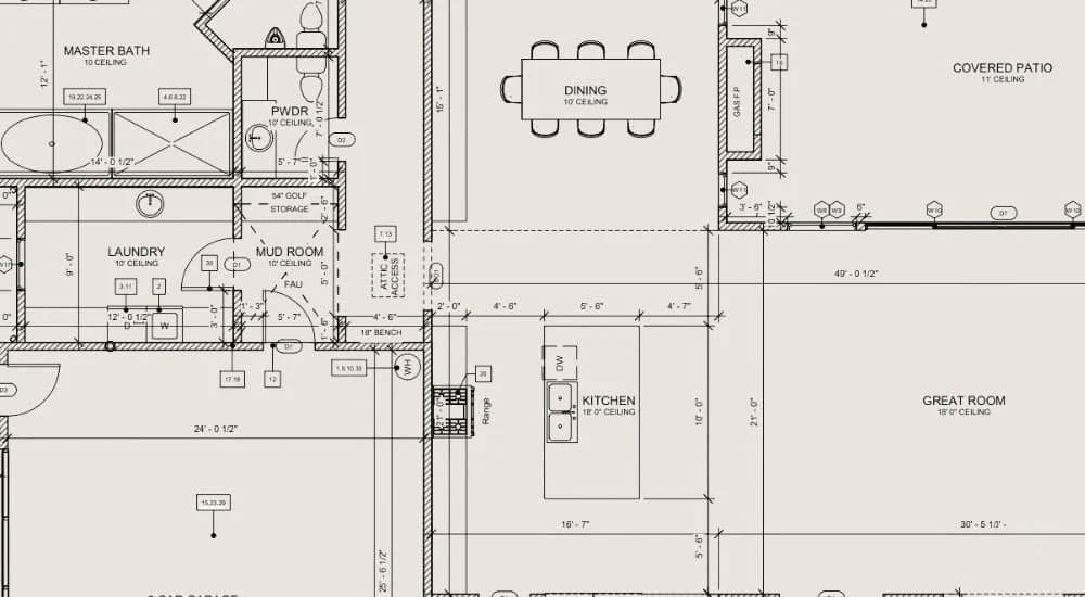
Modern Spanish Residence — 4,450 sq.ft.
Description
A modern Spanish California residence concept pairing warm material character with contemporary spatial planning. The deliverable package supports permit review with clear room adjacencies, structural continuity, and code-oriented documentation for an efficient approval path.

