Projects
Explore our projects. Reach out if you would like to discuss work with our team.
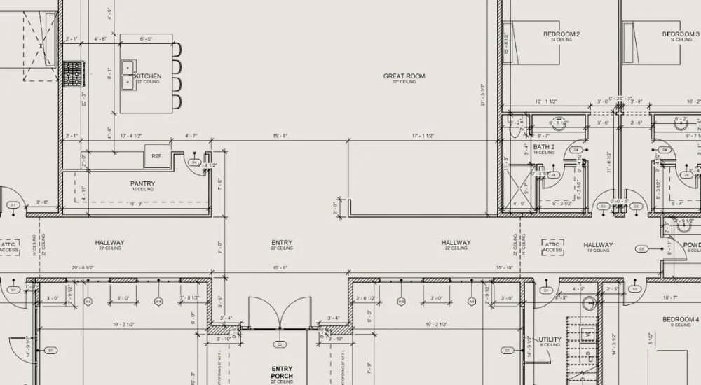
European Collection Residence — 7,489 sq.ft.
Description
A large-format California estate concept in the European collection with layered massing, formal arrival, and integrated indoor-outdoor gathering zones. The planning package is developed for permit-ready coordination across architectural intent, structural framing logic, and site-responsive layout decisions suitable for high-value residential jurisdictions.

