Projects
Explore our projects. Reach out if you would like to discuss work with our team.
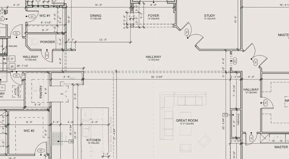
Mediterranean Collection Residence — 4,248 sq.ft.
Description
A Mediterranean-influenced California home concept focused on balanced proportions, shaded exterior transitions, and practical circulation for family living. The plan set emphasizes permit clarity, discipline coordination, and buildability for suburban lots with architectural review requirements.

