Projects
Explore our projects. Reach out if you would like to discuss work with our team.
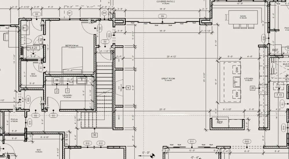
Modern Prairie Residence — 5,560 sq.ft.
Description
A high-capacity modern prairie residence concept for California lots requiring substantial program area and disciplined circulation. The package supports entitlement and permitting with coordinated plan logic, structural alignment, and clear drawing hierarchy.

