Projects
Explore our projects. Reach out if you would like to discuss work with our team.
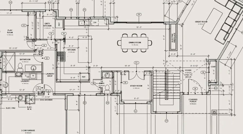
Modern Contemporary Residence — 3,433 sq.ft.
Description
A compact modern-contemporary California home concept designed around clean geometry, daylight access, and highly usable daily living zones. The permit package is organized to align architectural scope with structural intent and streamlined jurisdictional review.

