Projects
Explore our projects. Reach out if you would like to discuss work with our team.
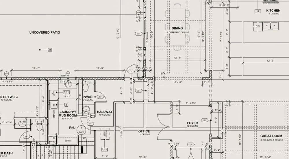
Modern Prairie Residence — 3,489 sq.ft.
Description
A California prairie-style concept that emphasizes long rooflines, daylight capture, and controlled transitions between public and private zones. Permit-oriented sheets are assembled for clear review, coordinated structure, and field-ready interpretation.

