Projects
Explore our projects. Reach out if you would like to discuss work with our team.
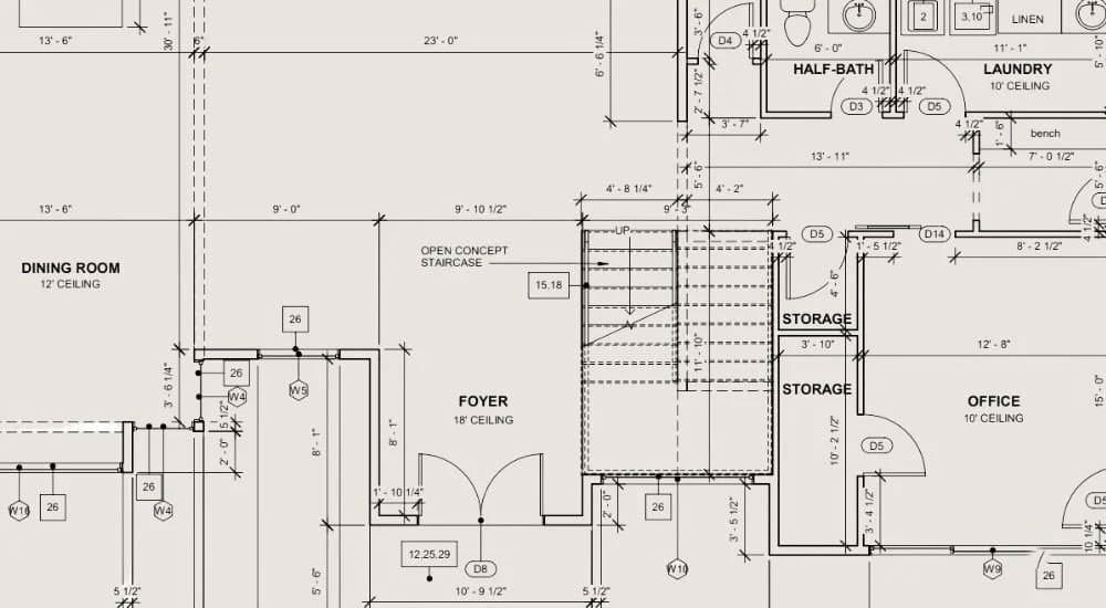
Contemporary Home Concept — 4,478 sq.ft.
Description
A balanced contemporary California home concept with open public zones and clearly separated private wings. The planning set is curated for smooth permitting with disciplined annotation, coordinated structure, and decision-ready layout information.

