Projects
Explore our projects. Reach out if you would like to discuss work with our team.
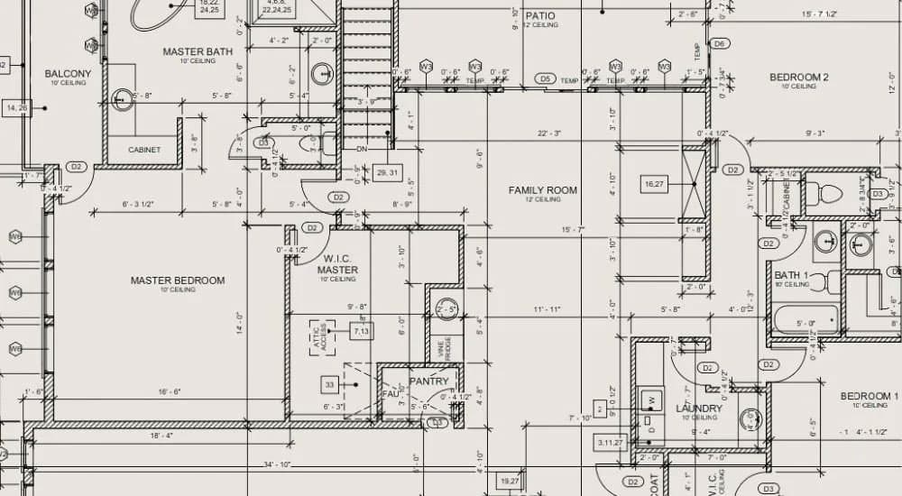
Modern Prairie Residence — 3,426 sq.ft.
Description
A modern prairie California home with strong horizontal expression and efficient interior zoning. The documentation set is tuned for permit confidence, coordinating geometry, structural rhythm, and practical construction sequencing.

