Projects
Explore our projects. Reach out if you would like to discuss work with our team.
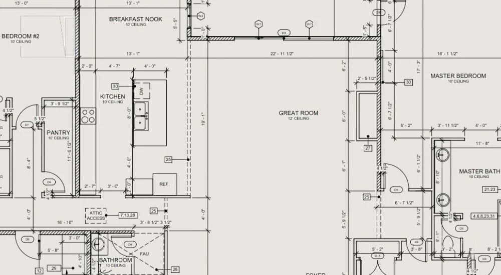
Modern Farmhouse Residence — 3,000 sq.ft.
Description
A right-sized California modern farmhouse concept blending contemporary lines with familiar residential comfort. Drawings are structured for permit efficiency, including coherent room planning, constructible spans, and clear integration points for consultant disciplines.

